A new eco-friendly residential building in the green district of Athens - Kallithea. This top-quality A+ building comprises 7 floors, providing a total of 22 premium living apartments, with ample parking spaces to accommodate residents’ vehicles.
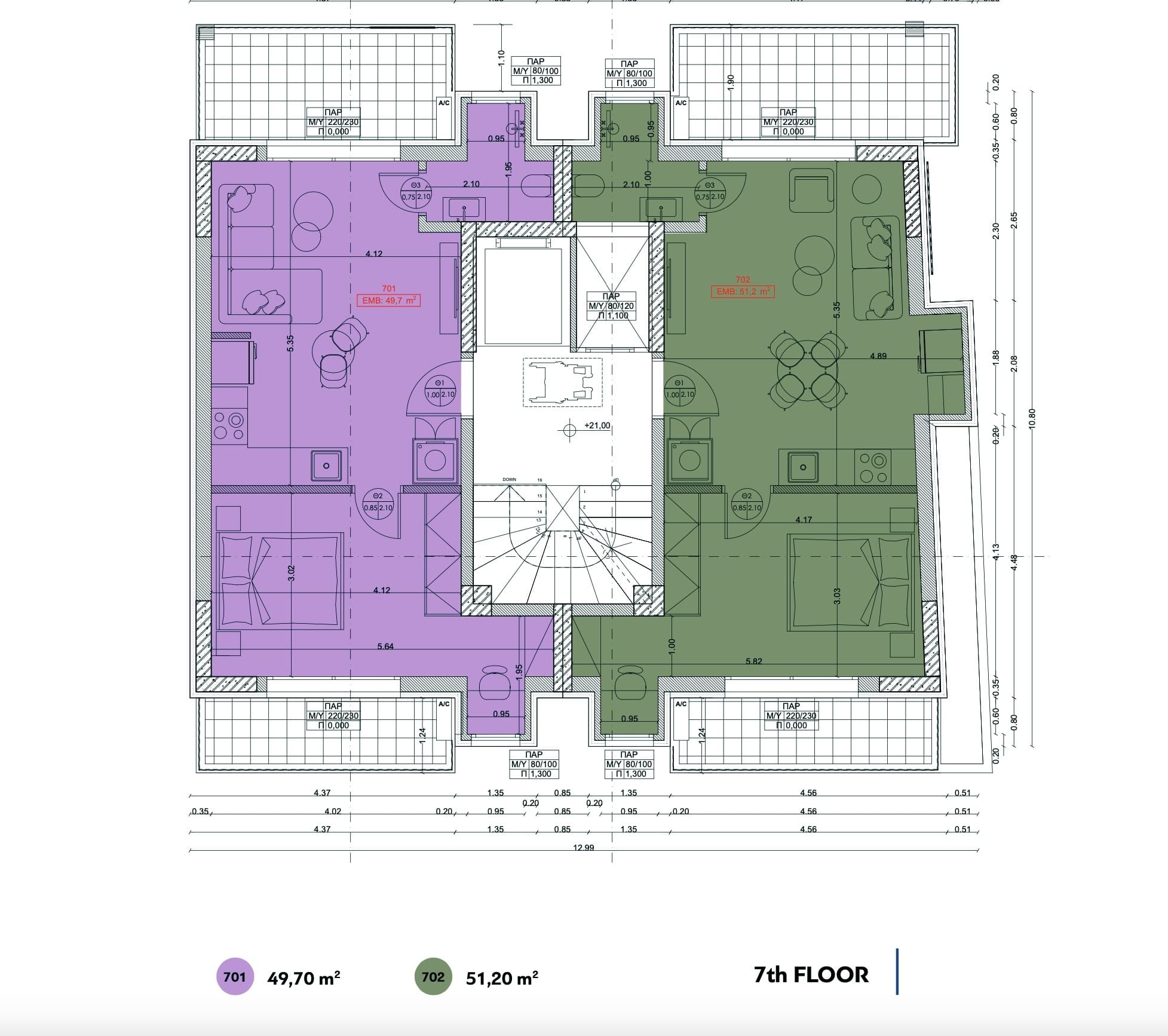
This seventh-floor 50 sq.m. apartment features 1 spacious bedroom, one bathroom, an open-plan corner kitchen, a dining / sitting area and a private balcony that offers a beautiful open city views.
Located close to the metro, shops, schools, universities, and a nearby park with a playground and jogging track, this wonderful residential building is just a 20-minute commute from central Athens, combining modern living with urban convenience.
| Region | Kallithea South |
| Location | Kallithea |
| Code | KERA-000000443 |
| Price | 250.000 € |
| PriceLabel | € |
| Sqm | 50 sq.m. |
| ResidenceType | Residential |
| ResidentialType | House |
| Levels | 0 |
| Floor | 0 |
| Parking | Yes |
| LivingRoom | 1 |
| Bathrooms | 1 |
| Bedrooms | 1 |
| Heating | Yes |
| HeatingType | Autonomous heating |