This luxury residential complex in the prestigious neighborhood of Alimos, Athens, features a premium 172 sq.m. split-level apartment.
Property Layout
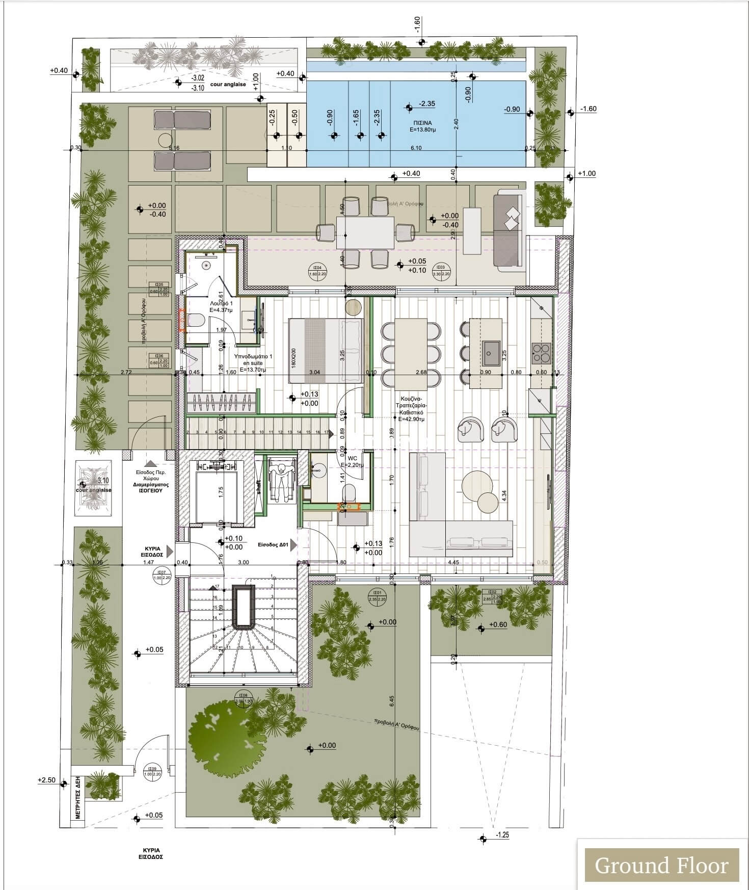
Ground Floor (82 sq.m.): This level offers a direct access to a private garden and swimming pool. It features an open-plan kitchen with a dining area, one large bedroom with an ensuite bathroom, and a guest WC.
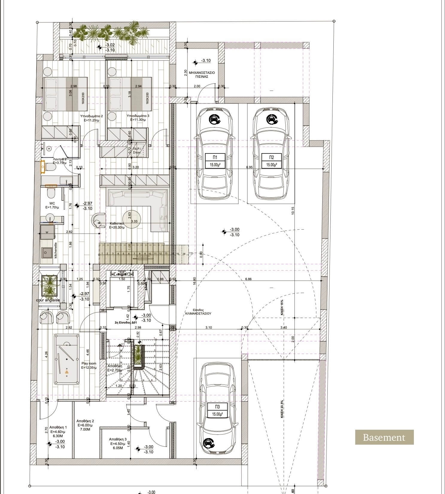
Basement (90 sq.m.): Comprises two spacious bedrooms, an additional open-plan kitchen, a sitting area, and a dedicated play-room, one full bathroom, a guest WC, and storage facilities.
Designed for those who seek both elegance and comfort, this exclusive development offers spacious, high-end apartments with panoramic views of the Aegean Sea.
KEY POINTS
Exclusive Residences: Three luxury apartments with expansive layouts and private balconies.
Estimated Delivery: Q3 2027
Amenities: Private parking, pools, and state-of-the-art features for a lavish lifestyle
LOCATION
Proximity to the Sea: Only a short walk from Alimos Marina and the beaches of the Athens Riviera
Exclusive Neighborhood: Alimos is known for its tranquil environment, ideal for those seeking peace and privacy.
Access to the City: Just a 15-minute drive to Athens’ city center, providing easy access to the best of urban life.
| Region | Athens South |
| Location | Alimos Athens |
| Code | KERA-000000444 |
| Price | 790.000 € |
| PriceLabel | € |
| Sqm | 172 sq.m. |
| ResidenceType | Residential |
| ResidentialType | House |
| Levels | 2 |
| Floor | 0 |
| Parking | No |
| LivingRoom | 1 |
| Bathrooms | 4 |
| Bedrooms | 3 |
| Heating | Yes |
| HeatingType | Autonomous heating |